fáze: architektonická studie, koordinace dokumentace povolení záměru, koordinace prováděcí dokumentace stavby, dokumentace interiéru, autorský dozor, realizace rok: 2025 foto/vizu: Ondřej Holub
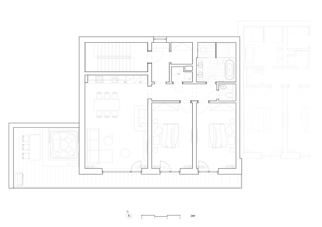
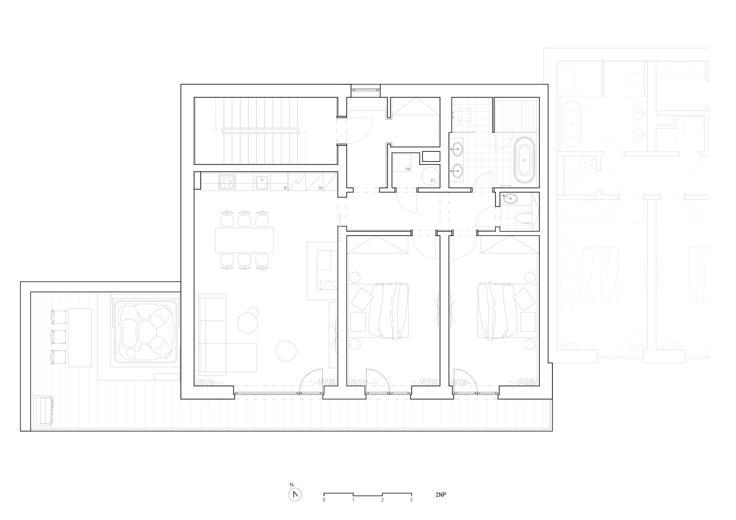
Projekt 2PEAKS je návrhem horského apartmánového dvojdomu, který klade důraz na výhledy do krajiny a komfortní užívání prostoru. Název odkazuje na dva dominantní vrcholy Krušných hor – Klínovec a Fichtelberg. V návrhu jsme pracovali s jejich GPS souřadnicemi a umístili okna ve štítech tak, aby z jídelního stolu byl pohled na vrcholy přesně v ose okna.
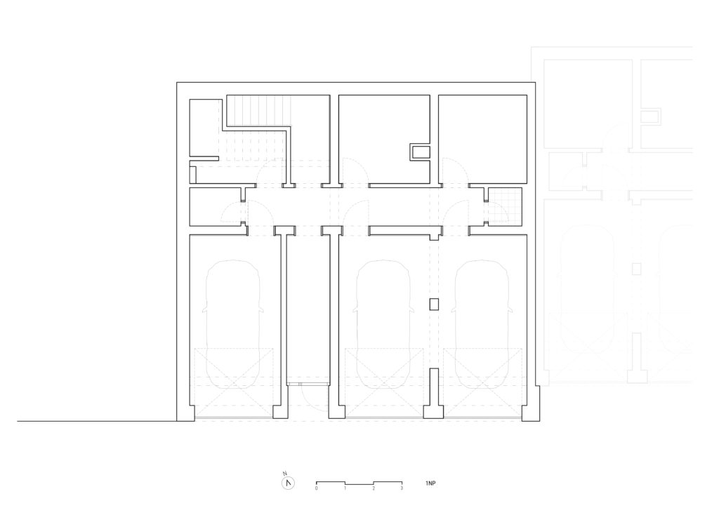
Každý z objektů tvoří tři apartmánové jednotky o velikosti 103 m². Architektonický koncept rozlišuje jednotlivá podlaží podle charakteru užívání:
Materiálové řešení podporuje propojení stavby s okolní krajinou. Fasáda je obložena sibiřským modřínem se střídáním dvou šířek prken v nepravidelném rytmu, který se opakuje na terasách, dřevěných podlahách interiérů i obkladech stěn společných prostor. Suterénní podlaží kombinuje plechový obklad a gabionové koše, střecha je navržena z falcovaného plechu v barevné shodě s podnoží.
Projekt pracuje s detaily, které zvyšují komfort pobytu a zároveň zdůrazňují dialog mezi architekturou a krajinou.
