fáze: architektonická studie, dokumentace interiéru, autorský dozor, subdodávky rok: 2025 foto/vizu: Ondřej Holub
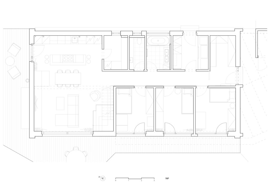
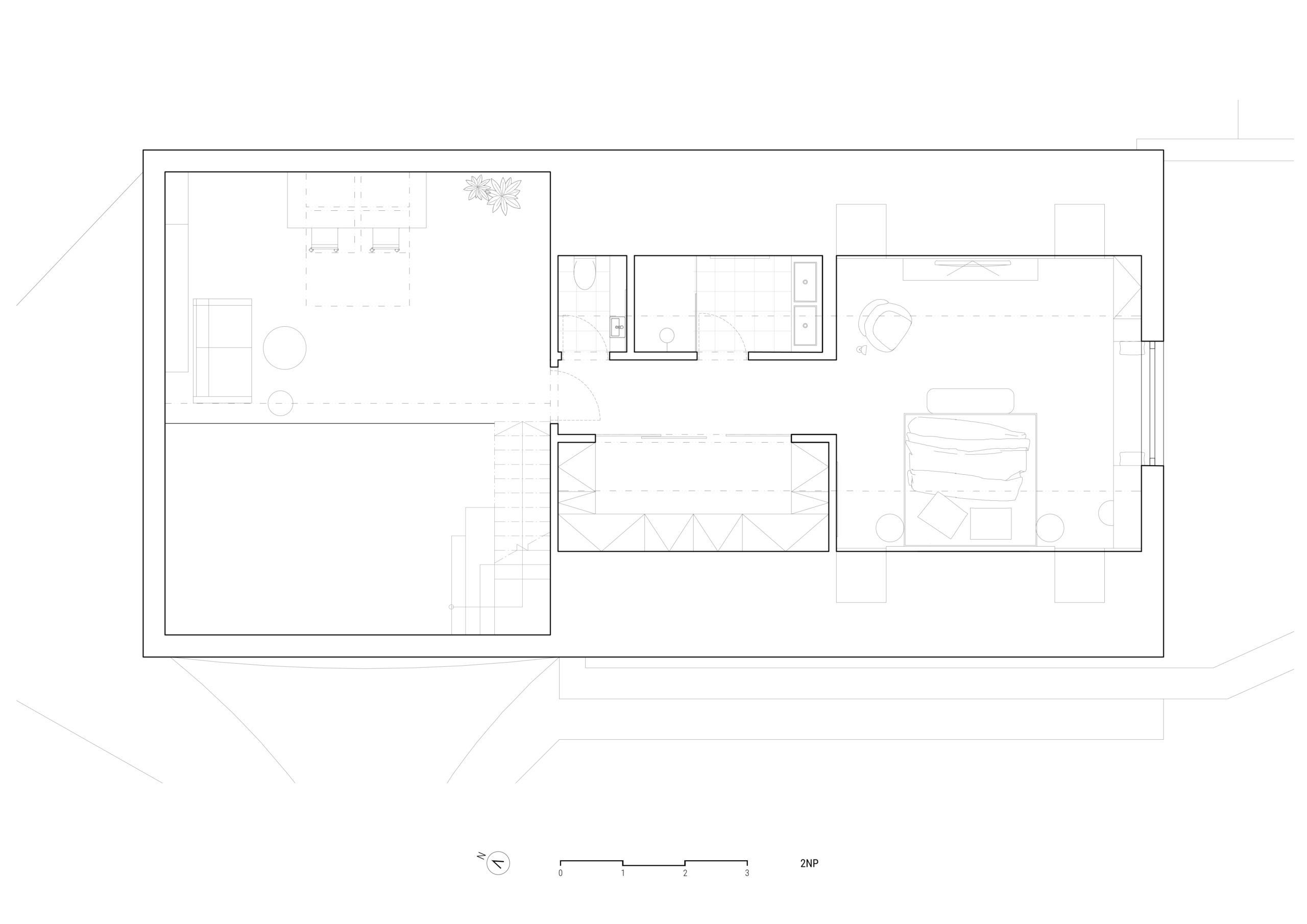
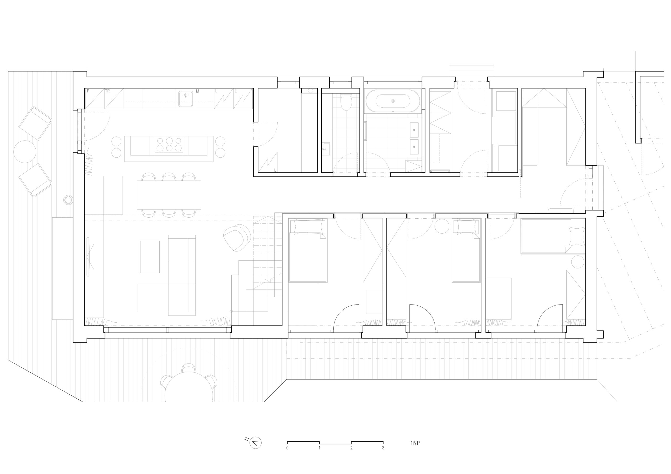
Interiér rodinného domu ve Kbelích je postavený na velkorysém obytném prostoru s otevřeným patrem, které propojuje jednotlivé úrovně do jednoho klidného celku. Průhledy, vertikální kontakt a práce se světlem dodávají interiéru vzdušnost a přirozenou hierarchii.
Materiálově je návrh založen na kontrastu betonových stěrek a tmavě mořené dubové dýhy, která se promítá do truhlářských a nábytkových prvků a interiéru dodává hloubku bez zbytečné dekorativnosti. Výrazným detailem je zámečnické zábradlí u otevřeného patra – subtilní linie, která podtrhuje charakter prostoru. Celé řešení doplňují promyšlené úložné kapacity a precizní práce s detailem.
