fáze: architektonická studie, dokumentace povolení záměru, prováděcí dokumentace stavby, dokumentace interiéru, autorský dozor, realizace rok: 2025 foto/vizu: Ondřej Holub
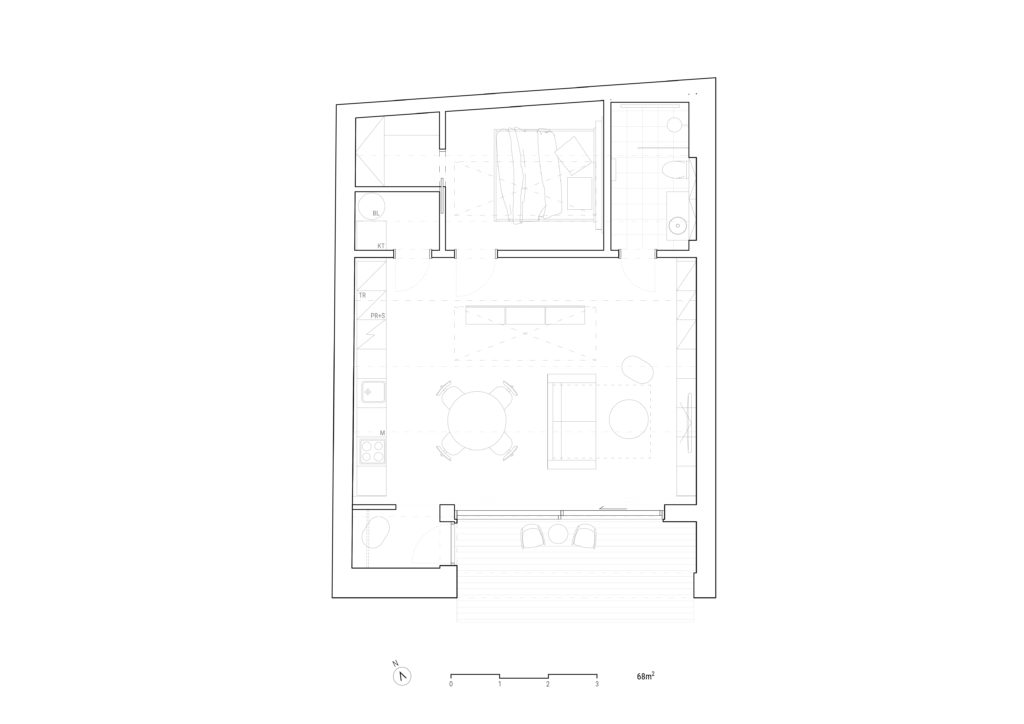
Z původní nevyužívané budovy pekařské dílny ve vnitrobloku jsme vytvořili plnohodnotný apartmán. Projekt nabízí jednu ložnici, koupelnu a velkorysý obytný prostor s kuchyní. Místo původních garážových vrat jsme navrhli velký posuvný HS portál, který propojuje interiér s exteriérem a rozšiřuje obytný prostor o dřevěnou terasu.
V interiéru jsme se rozhodli ponechat surové kvality stavby – betonový trámový strop se světlíky přivádí do prostoru přirozené světlo a vytváří charakteristickou atmosféru. Barevné akcenty v kombinaci s přírodního dřeva a nerezovými plochami kuchyně oživují prostředí a dávají mu osobitý výraz. Většina nábytku byla navržena na míru a vyrobena z překližky, čímž se podařilo propojit jednoduchost, funkčnost a vizuální jednotu celého apartmánu.
