fáze: architektonická studie, dokumentace povolení záměru, prováděcí dokumentace stavby, dokumentace interiéru rok: 2025 foto/vizu: BekArch s.r.o.
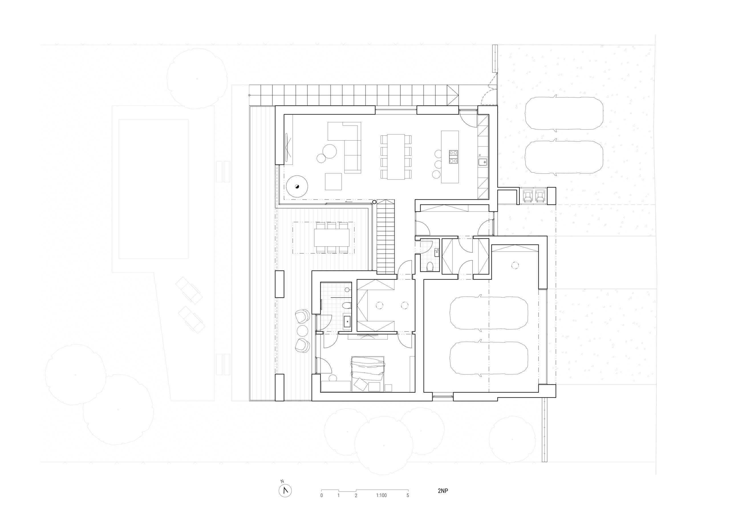
Dvoupodlažní vila v nové rezidenční lokalitě na jižním okraji Dalovic, přibližně 3 km od centra Karlových Varů, s dálkovými výhledy na město a zalesněné svahy. Dům je navržen ve svahu a využívá jeho výškový rozdíl – vstup z ulice vede do horního podlaží s garáží a hlavní obytnou částí, která může fungovat i bezbariérově. Obytný prostor se přes velkorysé prosklení otevírá na terasu s orientací na jih a západ.
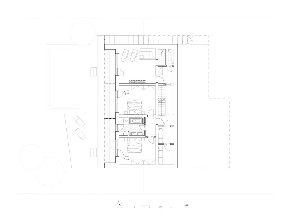
Spodní podlaží navazuje na soukromou zahradu a obsahuje technické zázemí, dětské pokoje s možností dělení a wellness, které lze do budoucna oddělit jako samostatnou jednotku. Hmota je zjednodušena do dvou prolínajících se kvádrů plynule usazených do terénu, zjemněných zelení a velkými prosklenými plochami. Materiálově stavba pracuje s kontrastem pohledového betonu a přírodního dřeva, doplněných hliníkovými prvky a šedými rámy oken.
