cs

Glass Block Apartment by the Embankment – Trojická

our role:
Architectural concept study, interior documentation, architectural supervision, subcontracted works

year:
2026

photo/visual:
Ondřej Holub

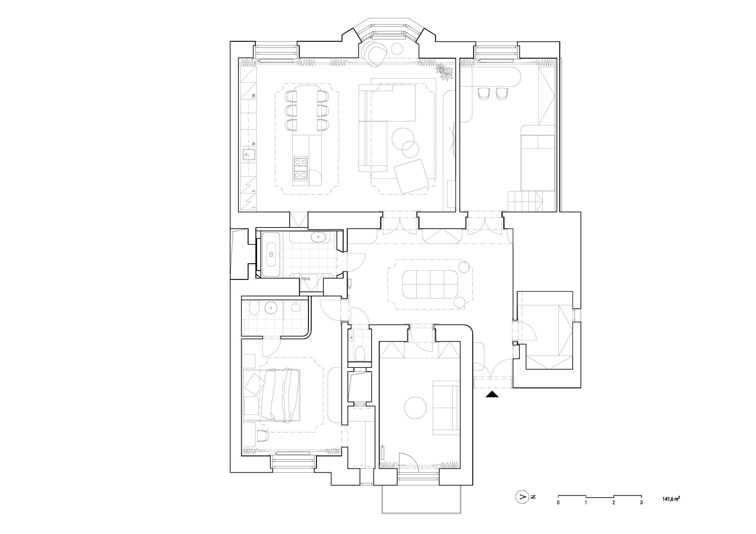
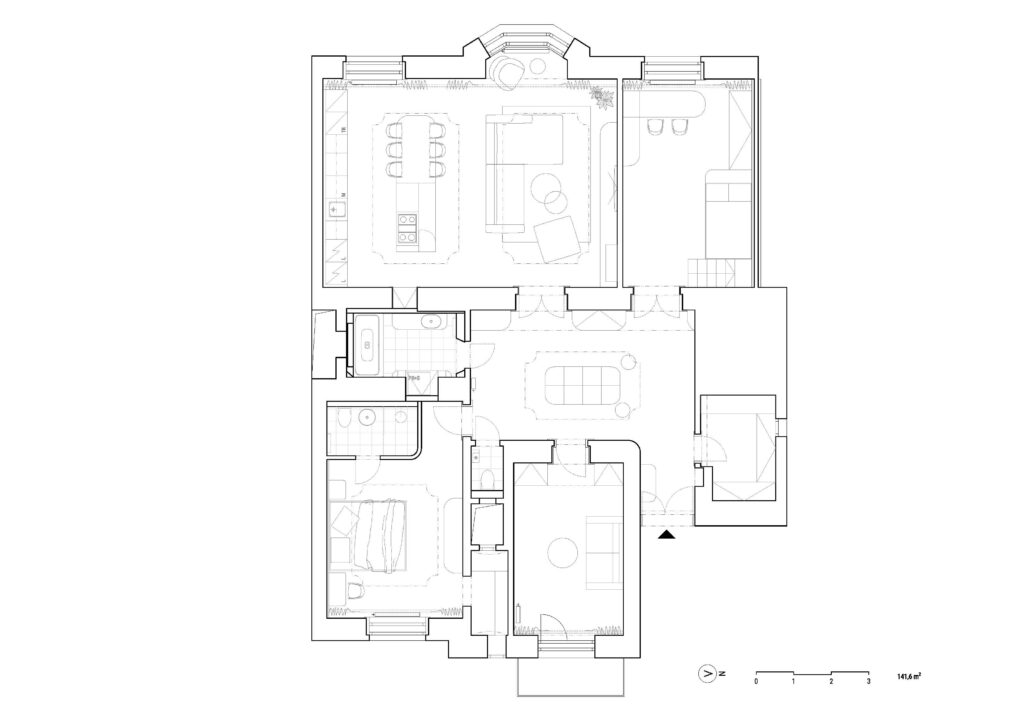
This complete renovation of an apartment on Rašínovo nábřeží capitalizes on its unique views of the Vltava River and Prague Castle. The 4+kk (3-bedroom) layout was redesigned to meet modern living standards, with a sophisticated entrance hall featuring a seamless, invisible storage system at its heart. The river-facing social zone connects the living room with the kitchen, dominated by a bespoke island that flows effortlessly into a dining table. We transformed the original bay window into an intimate relaxation nook with a view. For maximum privacy and quiet, the private wing – comprising the master bedroom, walk-in closet, and en-suite bathroom – is situated facing the courtyard. The material concept focuses on timelessness: dark-stained oak veneer and flooring contrast with white bespoke cabinetry and metallic accents. The entire interior is conceived as a private gallery for an extensive art collection, while decorative moldings and ceiling roses pay homage to the building’s historic character.

other projects